Building on Awkward Self Build Sites in Bath
Awkward self build sites can often appear difficult at first, particularly in historic cities like Bath where land is limited. However, with thoughtful architectural design these constrained plots can become exceptional homes.
Across Bath and the wider Somerset area, many self-build opportunities come in the form of tight urban plots that require the input of an experienced Bath architect to unlock their potential. These may be narrow gaps between buildings, sloping land, irregular pieces of land or sites hidden behind existing homes. While these plots can present design challenges, they can also offer the opportunity to create distinctive and highly characterful homes.
In a historic city like Bath, finding straightforward building plots is increasingly rare. Many opportunities arise on constrained sites that require careful design thinking and a clear understanding of planning, neighbouring relationships and site conditions.
At TEA Architects, a Bath architect practice specialising in residential and self-build homes, we regularly work with clients to unlock the potential of difficult plots. With the right approach, awkward sites can become light-filled, practical and beautifully designed homes.
What Makes Awkward Self Build Sites Challenging?
For the purposes of this article we are focusing on urban and suburban plots.
In rural locations there are often generous buffers between buildings. Landscaping, trees and distance help soften the relationship between neighbouring properties.
In urban areas such as Bath, the design of a new home must respond much more carefully to its surroundings. Privacy, daylight, access and neighbouring buildings all influence what can be built.
Common examples of awkward self-build sites include:
- Narrow plots between existing buildings
- Irregular or triangular parcels of land
- Backland sites behind existing homes
- Corner plots with unusual geometry
- Plots constrained by access, overlooking or daylight
Many of these opportunities appear as infill plots, where a new home is carefully inserted between existing buildings. While these sites can be challenging, they can also produce some of the most interesting examples of contemporary residential architecture.

Designing Homes on Awkward Self Build Sites in Bath
We have recently started work on a new dwelling on a constrained site in Bath where the design is heavily influenced by surrounding conditions.
One particular challenge relates to a highways retaining wall located alongside the site. The design proposals explore lowering parts of the site and extending the building closer to this retaining wall. This raises important structural questions about whether the changes could affect the stability of the wall.
To understand the implications early, we engaged a structural engineer during RIBA Stage 2. While this is earlier than is typical for small residential projects, it can be extremely valuable on constrained sites where structural conditions influence the overall design.
Working collaboratively with engineers and consultants early in the process helps ensure that the design evolves with a clear understanding of technical risks.
Planning Constraints in Bath
Bath is a UNESCO World Heritage city and much of the city lies within the Bath Conservation Area. This means new development must respond carefully to its historic surroundings. Planning applications in Bath are assessed by Bath & North East Somerset Council, which provides guidance on design, conservation areas and development policies.
When designing self-build homes in Bath, architects often need to consider:
- Conservation area design guidance
- The character of surrounding buildings
- The relationship with neighbouring properties
- Impact on nearby listed buildings
- Roofscape and streetscape character
Because of these factors, awkward sites in Bath often require particularly thoughtful architectural design to achieve planning permission.
Understanding the Site Before Designing
Good design starts with understanding the site properly.
One of the most important early steps is commissioning a detailed topographical survey. This survey should include as much information as possible about the site and surrounding buildings.
Typically this will include:
- Garden levels of neighbouring properties
- Roof heights and roof design
- Window positions and heights
- Boundary treatments
- Distances between buildings
- Site orientation
- Access points
Having an accurate survey provides a clear starting point for developing a design that responds appropriately to the surrounding context.
Access and Highways Considerations
Access can be one of the most challenging aspects of developing awkward plots.
For small developments of one or two homes, refuse vehicles are usually not expected to enter the site itself. Waste collection can often take place from the public highway provided the distance from the dwelling to the collection point meets local authority guidance.
Larger sites may require space for delivery vehicles to enter, unload and turn around.
Fire service access is also an important factor. Fire appliances must typically be able to reach within a certain distance of all parts of a dwelling. If this cannot be achieved, additional infrastructure such as a dedicated water supply for firefighting may be required.
Considering these factors early in the design process helps avoid unnecessary costs later.
Trees and Biodiversity Requirements
Trees can have a significant impact on the developable area of a site.
Before submitting a planning application, a tree survey is often required. This survey identifies the size, species and condition of trees on the site and establishes a Root Protection Area that must be avoided by new structures.
Trees are also categorised according to their expected lifespan and quality, meaning some lower value trees may be removed where appropriate.
With Biodiversity Net Gain now part of the planning system, development must typically deliver at least a ten percent improvement in biodiversity value.
This means that habitats lost during development must be replaced with something of greater ecological value.
Unexpected Site Conditions
Urban sites can sometimes contain unexpected conditions beneath the ground.
Examples include:
Contamination
If the site was previously used for industrial purposes, such as a garage or petrol station, contaminated ground may need to be removed or treated before residential development can proceed.
Archaeology
Bath has a long history and archaeological remains are occasionally discovered during site investigations. If this occurs, specialist surveys or monitoring may be required.
Ground conditions
A site investigation report helps identify soil conditions, groundwater levels and potential ground gases. In some situations the ground conditions may require piled foundations, which can influence construction costs and access requirements.
Construction Logistics on Tight Sites
Building on constrained urban sites can also present logistical challenges during construction.
Limited access can affect:
- Delivery of materials
- Crane access
- Scaffolding arrangements
- Storage of materials on site
Thinking about construction logistics early in the design process can help ensure that a project remains practical and cost effective to build.
Design Opportunities on Awkward Self Build Sites
While awkward sites bring constraints, they also present opportunities for creative architectural design.
Some strategies we often explore include:
Internal courtyards
Courtyards can allow multiple rooms to benefit from light and views where traditional windows may be limited by neighbouring buildings.

Light wells and rooflights
Strategically placed rooflights or light wells can bring daylight into lower ground floors or internal spaces.

Carefully framed views
Deep window reveals or window seats can direct views away from neighbouring properties and towards private garden space.
Split level living
On sloping sites, entering at upper ground level and descending to living spaces below can create interesting internal relationships between spaces.
Terraces and balconies
Raised terraces or balconies can provide additional outdoor amenity space where garden areas are limited.

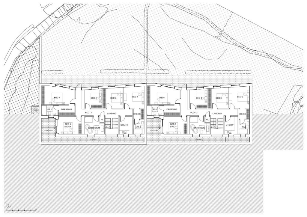
Case Study
Improving a Constrained Development
We recently worked on a project involving two new build homes on a sloping site where TEA Architects were responsible for the technical design and construction support following planning permission obtained by another architect.
The approved scheme positioned the houses directly against a retaining wall at lower ground floor level. Several rooms at the rear of this level had no windows or views out, and the retaining wall required extensive tanking systems to keep the internal spaces dry.
From a development risk perspective, retaining walls and tanking systems can pose significant long term risks. If tanking systems fail, the consequences for homeowners can be disruptive and expensive.
We proposed moving the houses slightly away from the retaining wall to create a one metre gap between the wall and the building. This adjustment reduced the reliance on tanking systems and allowed natural light into the lower ground floor rooms.
The revised design also introduced a courtyard to bring light into a bedroom, along with external terraces to capture views across the site.
While these changes required some additional investment, they resulted in significantly brighter, better ventilated and more enjoyable living spaces.

Why Architects Add Value on Difficult Plots
Awkward sites often require a careful balance between planning policy, technical constraints and spatial design.
Architects can help by:
- Identifying hidden opportunities within the site
- Coordinating engineers and specialist consultants
- Developing designs in three dimensions
- Creating high quality spaces despite physical constraints
This is where thoughtful architectural design can make a significant difference to the success of a project.
Working with a Bath Architect on Awkward Self Build Sites
Awkward plots require careful design thinking and a clear understanding of planning, structure and neighbouring relationships – where work affects shared structures or boundaries, the Party Wall etc. Act 1996 may apply.
Working with an experienced Bath architect can help identify the opportunities within a difficult site and develop a design that responds positively to its surroundings.
At TEA Architects, we regularly work on constrained urban plots across Bath and the surrounding Somerset area, helping clients explore what may be possible on sites that initially appear challenging.
Through careful site analysis, collaboration with engineers and thoughtful architectural design, awkward sites can become distinctive homes that maximise light, space and views.
Unlocking the Potential of Awkward Sites
Awkward plots can initially appear daunting, but they often hold the potential for exceptional homes.
In cities like Bath, where available land is limited, these types of sites are becoming increasingly common. With the right architectural approach they can become unique, characterful homes that respond carefully to their surroundings.
If you are considering building on a tight or awkward plot in Bath or the surrounding Somerset area, working with an experienced architect can help uncover what might be possible.
At TEA Architects, we regularly help clients transform constrained sites into thoughtful and well designed homes.
Frequently Asked Questions
Can you build a house on an awkward plot?
Yes. Many awkward plots can be successfully developed with the right design approach. Careful consideration of planning constraints, daylight, privacy and access is essential.
Are narrow plots harder to get planning permission for?
Not necessarily. Planning decisions depend on how well a proposal responds to its context. A thoughtful architectural design can often overcome site constraints.
Do awkward plots cost more to develop?
Some constrained sites may require additional structural work or specialist foundations. However good design and early technical input can help manage these risks.
Should I hire an architect for a difficult site?
Yes. Difficult plots benefit from architectural expertise to balance planning requirements, technical considerations and spatial quality.
About the Author
Written by Ewan Tavendale, Architect at TEA Architects
TEA Architects is a Bath architect practice specialising in self-build homes, residential architecture and sustainable design across Bath and the South West. If you are considering building your own home, you may also find our guide to self-build homes in Bath helpful.





